Der FC Memmingen will ein neues Multifunktionsgebäude an der Arena an der Bodenseestraße bauen. 3,1 Millionen Euro soll das Projekt kosten – zunächst einmal den Verein. Langfristig aber wird sich die Stadt Memmingen zur Hälfte an den Kosten beteiligen. Das haben die Mitglieder des Stadtrats nun entschieden. Geplant sind in dem Multifunktionsgebäude unter anderem Toiletten und Duschen, Lager- und Schulungsräume. Auch das Nachwuchsleistungszentrum von Deutschem und Bayerischem Fußballverband, der sogenannte DFB-Stützpunkt, soll dort Räume erhalten. „Bisher müssen die ihre Stangen und Bälle auf vier Quadratmetern unterbringen“, betonte FCM-Präsident Armin Buchmann auf der Sitzung.
Finanziell soll das Ganze nun so ablaufen: Der FC Memmingen errichtet das Gebäude als alleiniger Bauherr. Die Bauarbeiten sollen mutmaßlich im späten Sommer oder Herbst 2021 auf dem Grundstück beginnen. Die Stadt wird erst aktiv, wenn das Gebäude steht – frühestens aber 2023. Sie zahlt dem Verein dann monatlich 4750 Euro Miete und das für 33 Jahre und vier Monate. Insgesamt erhält der FC Memmingen also eine Summe von knapp 1,9 Millionen Euro. Das entspricht der Hälfte der Kosten für Bau und Finanzierung des Gebäudes, etwa durch Zinsen für Darlehen.
Dieses Finanzierungsmodell biete für die Stadt einige Vorteile, erklärte Memmingens Kämmerer Gunther Füßle. Sollten die Kosten während der Bauzeit steigen – wie bei Projekten dieser Größenordnung möglich – trage der FCM diese Steigerung allein. Gleiches gilt für eine Änderung der Zinssätze der Darlehen. Eine Erhöhung der „Miete“ der Stadt ist ausgeschlossen, betonte Füßle. „Für uns ist das auch ein Zeichen, dass wir hier nicht etwas bauen und die Stadt bei Problemen gerade stehen muss, sondern dass der FC Memmingen die Verantwortung trägt“, sagt FCM-Präsident Armin Buchmann auf MZ-Anfrage. Große Vorteile habe der Verein durch diese späte Finanzierung der Stadt nicht. „Wir sehen das vielmehr als einzige Möglichkeit, dieses Projekt überhaupt umzusetzen.“
Nachdem die Finanzierung geklärt ist, sollen die Mitglieder des FC Memmingen auf einer Versammlung im April über das Projekt abstimmen. Vorher müssen sich Stadt und Verein allerdings noch in einem anderen Punkt einigen. Das Baugrundstück im südlichen Bereich der Arena gehört derzeit noch der Stadt. Diese werde die Fläche dem FCM aber zur Erbpacht zur Verfügung stellen, kündigte Füßle an. Die Erbpacht soll auf einen „geringen symbolischen Wert“ festgelegt werden. Die Details muss der Finanz- und Hauptausschuss jedoch erst noch beschließen.
Bedenken an diesem Finanzierungsmodell äußerte CSU-Stadtratsmitglied Professor Dr. Josef Schwarz. Seiner Meinung nach müsste der FCM die Aufträge für den Bau nach den öffentlichen Plan- und Vergaberichtlinien ausschreiben – schließlich beteilige sich die Stadt ja am Bau. Man nehme diesen Hinweis zur Kenntnis und werde ihn prüfen, sagte Oberbürgermeister Manfred Schilder (CSU). Sollte Schwarz Recht behalten, würden die Kosten für den Bau vermutlich steigen. Denn der FC Memmingen plant, viele Bauabschnitte von Sponsoren und Kooperationspartnern durchführen zu lassen. „Für die wäre das ein Prestigeprojekt, mit dem sie kein Geld verdienen wollen, sondern kostenneutral arbeiten“, erklärt Buchmann auf MZ-Anfrage. Diese Partnerfirmen könnten dafür als Gegenleistung das fertige Gebäude und die Technik darin als Präsentationsobjekt mit ihren Geschäftspartnern besichtigen.
Dass die Vergaberichtlinien tatsächlich beachtet werden müssen, glaubt Kämmerer Füßle nicht. Die Stadt habe mit dem Bau ja nichts zu tun und steige erst beim fertigen Gebäude ein, betonte er auf der Sitzung. Dennoch fiel die Entscheidung zur Finanzierung zunächst unter Vorbehalt der Auftragsvergabe.
Die Fraktion der Grünen/Linken kündigte zunächst an, der Finanzierung nicht zustimmen zu wollen. „Wir wissen, dass sich viele Menschen mit dem Verein identifizieren und Profis mehr Geld kosten als Amateure“, sagte Dr. Monika Schunk. Allerdings stünden in Memmingen in den nächsten Jahren noch viele weitere Investitionen in Sportstätten an – und schlussendlich handle es sich bei der Finanzierung um einen Zuschuss von 1,9 Millionen Euro an einen einzigen Verein. Dem widersprach Buchmann: das neue Multifunktionsgebäude stehe allen Memminger Vereinen und beispielsweise auch Klassen während des Sportunterrichts zur Verfügung. „Unsere 17 Spiele im Jahr sind nicht einmal fünf Prozent der Nutzung“, betonte er. Er könnte sich etwa eine Yogastunde für ältere Menschen, die nicht in einer kalten Halle üben wollen, oder eine Sitzung des Städtetags im neuen Gebäude vorstellen.Natürlich müsse man klären, wer für die Nutzung des Gebäudes verantwortlich sei, aber der FCM werde sich nicht verschließen. Nach kurzer Beratung stimmte daraufhin auch die Grüne/Linke-Fraktion der Finanzierung zu. Die Entscheidung fiel damit ohne Gegenstimme.
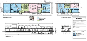
So könnte das neue Multifunktionsgebäude des FC Memmingen an der Bodenseestraße aussehen. Das Grundstück gehört derzeit noch der Stadt Memmingen, die es dem Verein zur Erbpacht zur Verfügung stellen will.



Von David Specht - Memminger Zeitung vom 17.12.2020 - Foto/Grafik/Animation/Pläne (C) Otto Birk GmbH
MEHR ZUM MULTIFUNKTIONSGEBÄUDE
